Projet de construction d'une maison 143 m² avec terrain à ARS-SUR-FORMANS (01)

Budget maîtrisé, délais garantis, assurances incluses : cette offre clé en main couvre chaque étape, du permis de construire à la remise des clés.

Votre projet clé en main commence ici

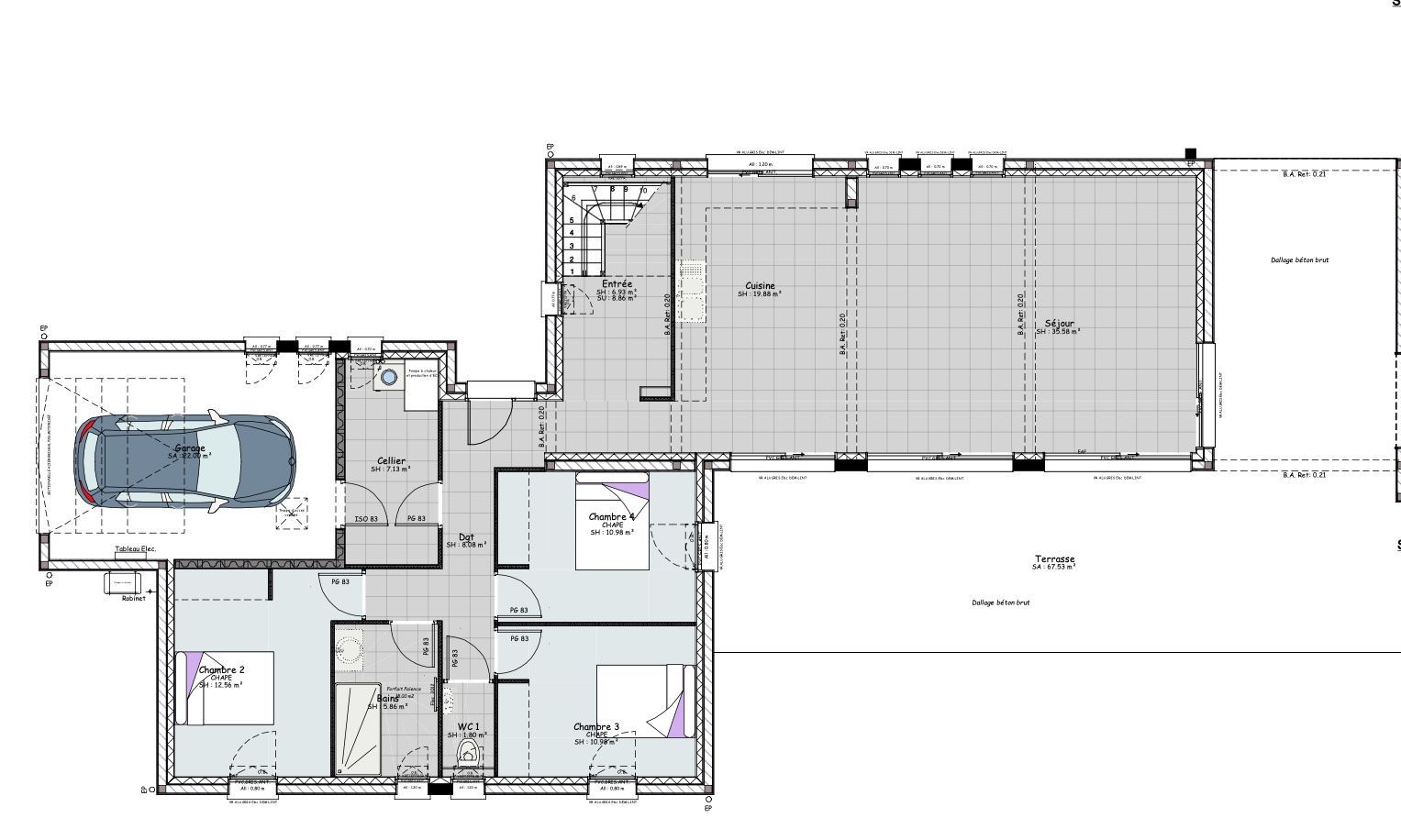
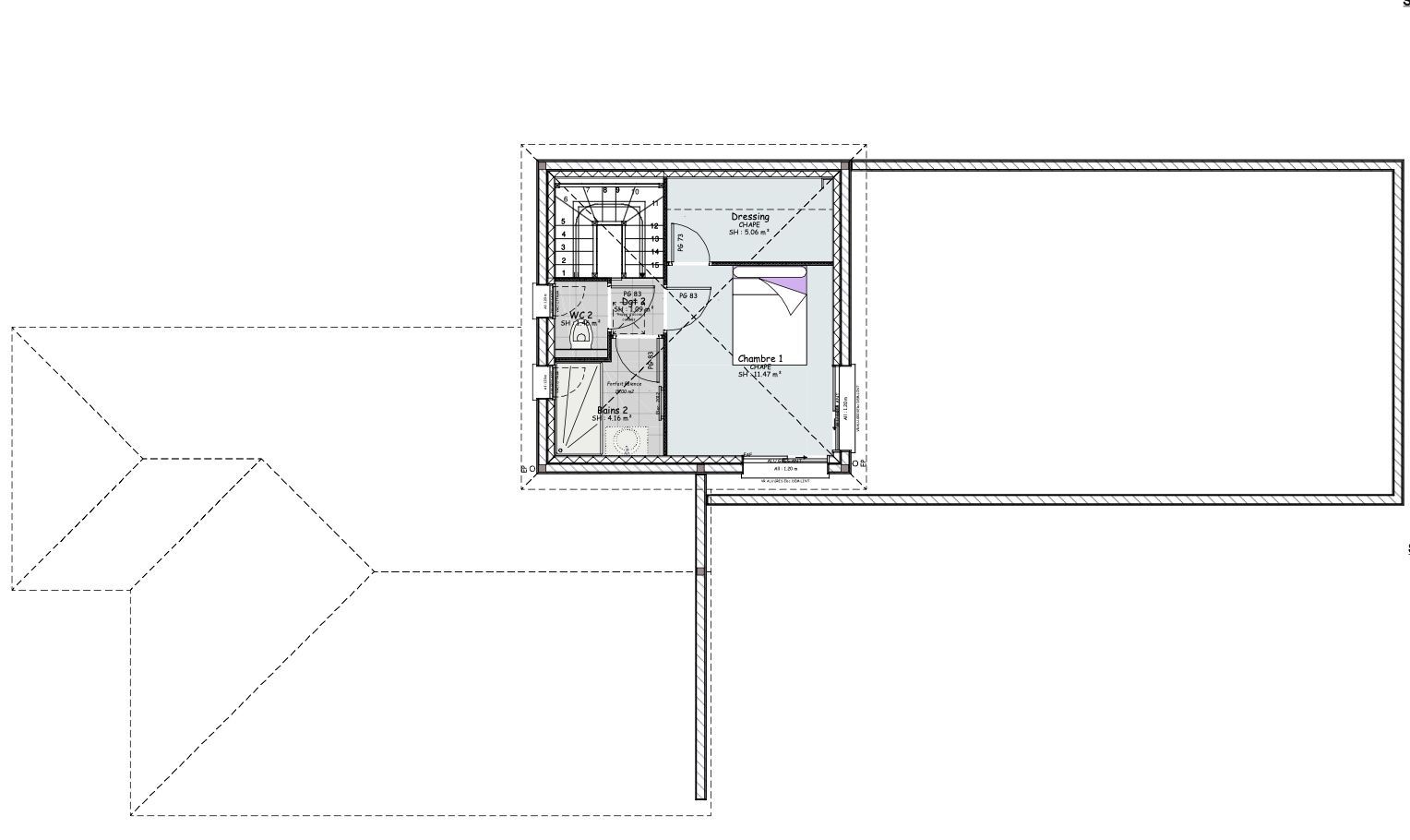
Maison 143 m² — 4 chambres

ARS-SUR-FORMANS (01480)
470 000 €
  • Pièces : 8
  • Chambres : 4
  • Surface maison : 143 m²
  • Surface terrain : 749 m²
  • Garage : 22 m²

À propos de cette offre

A ARS-SUR-FORMANS sur un terrain de 749 m², LES DEMEURES REGIONALES vous propose de réaliser cette maison neuve d'une surface de 143 m² habitables avec 4 chambres.

LES DEMEURES REGIONALES vous propose les prestations suivantes :
- Plan sur-mesure et personnalisé de 2 à 6 chambres
- Mode de chauffage au choix
- Grands choix d'équipements et de prestations
- Matériaux de qualité selon les normes en vigueur
- Accompagnement dans le choix et l’acquisition du terrain
- Construction conforme à la nouvelle RE 2020

Informations du terrain : Très beau terrain constructible sur la commune d'Ars sur Formans, rare opportunité, proche village et ses commodités. à avoir rapidement.

Demandez une étude gratuite et personnalisée de votre projet de construction !

Prix avec assurance dommages-ouvrage comprise, VRD non compris, terrain viabilisé, adaptation non comprise, assainissement compris, frais de notaire non compris, taxes non comprises, frais divers non compris. Terrain sélectionné et vu pour vous sous réserve de disponibilité et au prix indiqué par notre partenaire foncier. Conditions et visuels non contractuels.

Détails

  • Modèle présenté : RIVERSIDE-4CH143
  • Surface maison : 143 m²
  • Pièces : 8
  • Chambres : 4
  • Salles de bain : 2
  • Garage : 22 m²
  • Commune : 01480 ARS-SUR-FORMANS
  • Surface terrain : 749 m²
  • Lotissement : Non
  • Prix : 470 000 €

Plan

Localisation

Demander une étude gratuite personnalisée

* champ obligatoire