Projet de construction d'une maison 143 m² avec terrain à ESPINASSE-VOZELLE (03)

Budget maîtrisé, délais garantis, assurances incluses : cette offre clé en main couvre chaque étape, du permis de construire à la remise des clés.

Votre projet clé en main commence ici

Maison 143 m² — 4 chambres

ESPINASSE-VOZELLE (03110)
375 000 €
  • Pièces : 8
  • Chambres : 4
  • Surface maison : 143 m²
  • Surface terrain : 1 869 m²
  • Garage : 22 m²

À propos de cette offre

A ESPINASSE-VOZELLE sur un terrain de 1869 m², LES DEMEURES REGIONALES vous propose de réaliser cette maison neuve d'une surface de 143 m² habitables avec 4 chambres.

LES DEMEURES REGIONALES vous propose les prestations suivantes :
- Plan sur-mesure et personnalisé de 2 à 6 chambres
- Mode de chauffage au choix
- Grands choix d'équipements et de prestations
- Matériaux de qualité selon les normes en vigueur
- Accompagnement dans le choix et l’acquisition du terrain
- Construction conforme à la nouvelle RE 2020

Informations du terrain : Espinasse‑Vozelle est un village recherché de l’agglomération de Vichy, à la campagne mais tout proche des commerces, écoles et services 🏡. On y profite d’un environnement verdoyant, de petites structures à taille humaine et d’un accès rapide à Vichy et à l’autoroute, idéal pour les actifs et les familles 🚗. La commune bénéficie d’un bon niveau d’équipements (associations, vie locale, connexion internet) et offre un cadre paisible pour s’installer tout en restant connectés à un bassin d’emplois dynamique 🌳.

Demandez une étude gratuite et personnalisée de votre projet de construction !

Prix avec assurance dommages-ouvrage comprise, VRD compris, viabilisation comprise, adaptation non comprise, assainissement non compris, frais de notaire non compris, taxes non comprises, frais divers non compris. Terrain sélectionné et vu pour vous sous réserve de disponibilité et au prix indiqué par notre partenaire foncier. Conditions et visuels non contractuels.

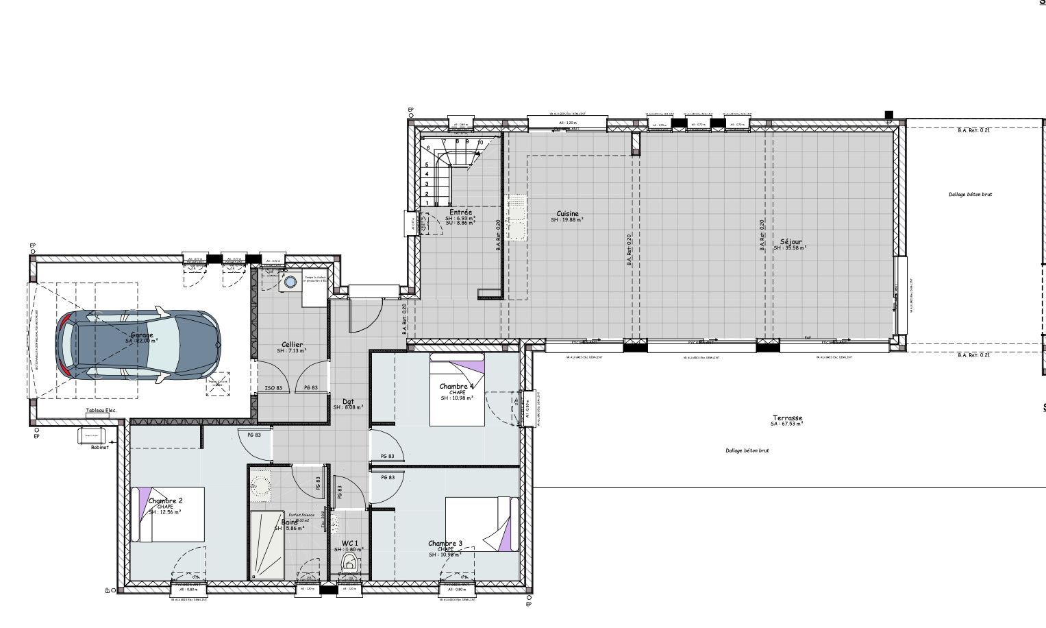
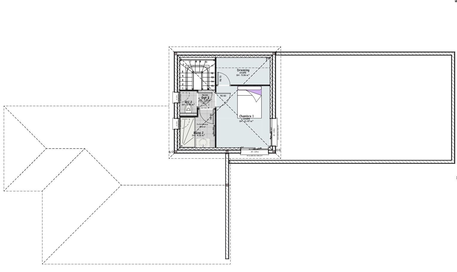
Détails

  • Modèle présenté : RIVERSIDE-4CH143
  • Surface maison : 143 m²
  • Pièces : 8
  • Chambres : 4
  • Salles de bain : 2
  • Garage : 22 m²
  • Commune : 03110 ESPINASSE-VOZELLE
  • Surface terrain : 1 869 m²
  • Lotissement : Non
  • Prix : 375 000 €

Plan

Localisation

Demander une étude gratuite personnalisée

* champ obligatoire