Projet de construction d'une maison 143 m² avec terrain à SAINT-PIERRE-ROCHE (63)

Budget maîtrisé, délais garantis, assurances incluses : cette offre clé en main couvre chaque étape, du permis de construire à la remise des clés.

Votre projet clé en main commence ici

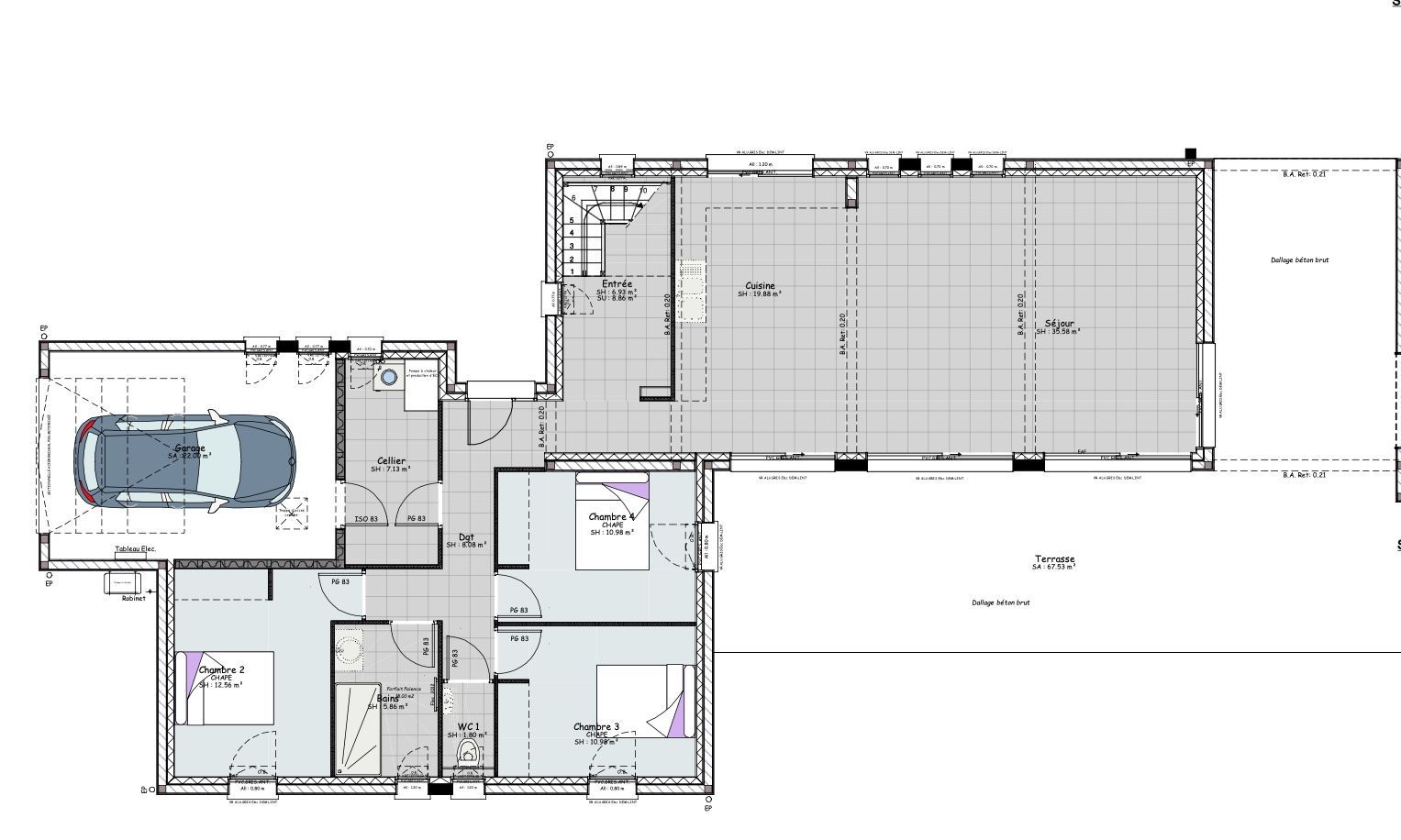
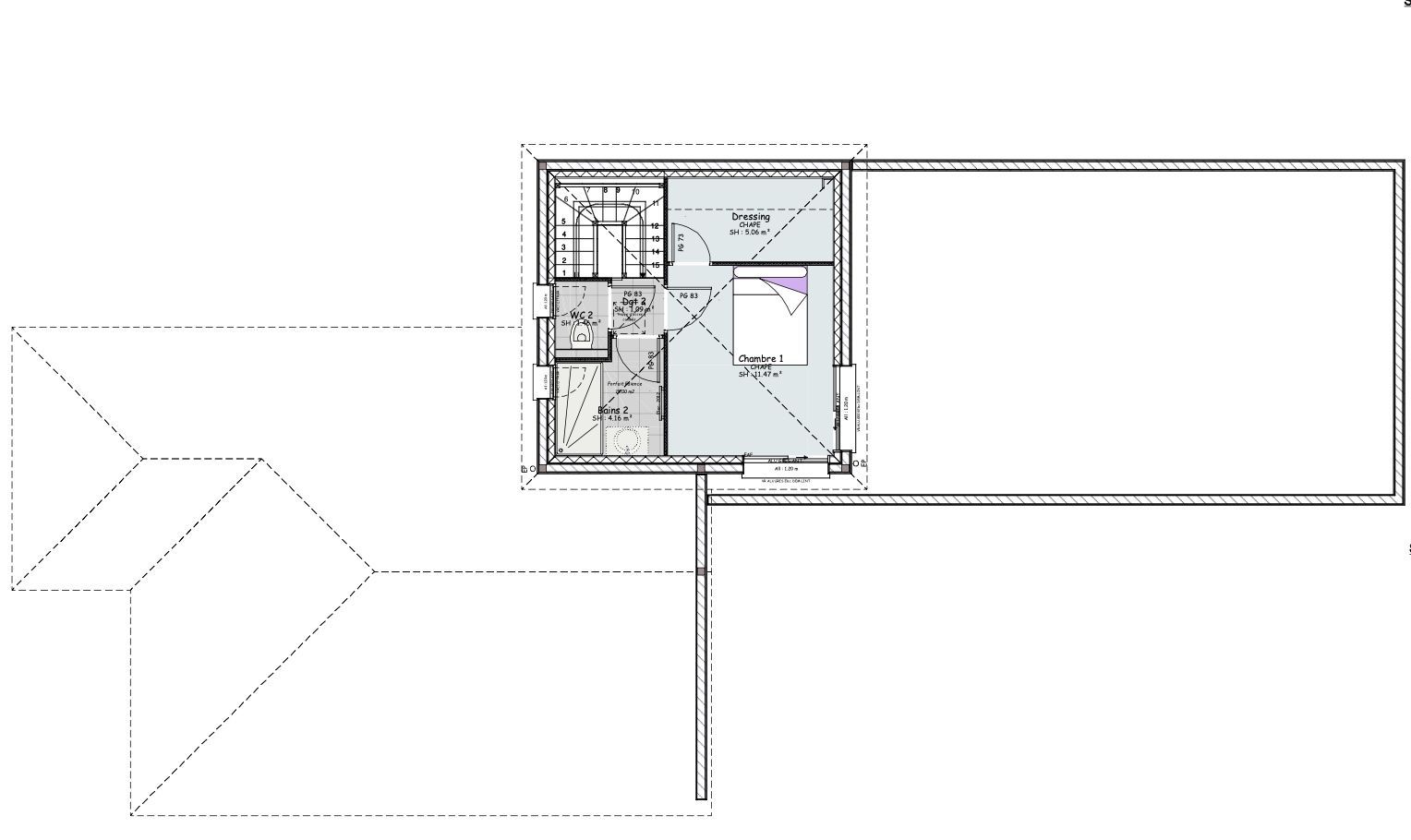
Maison 143 m² — 4 chambres

SAINT-PIERRE-ROCHE (63210)
373 230 €
  • Pièces : 8
  • Chambres : 4
  • Surface maison : 143 m²
  • Surface terrain : 1 094 m²
  • Garage : 22 m²

À propos de cette offre

A SAINT-PIERRE-ROCHE sur un terrain de 1094 m², LES DEMEURES REGIONALES vous propose de réaliser cette maison neuve d'une surface de 143 m² habitables avec 4 chambres.

LES DEMEURES REGIONALES vous propose les prestations suivantes :
- Plan sur-mesure et personnalisé de 2 à 6 chambres
- Mode de chauffage au choix
- Grands choix d'équipements et de prestations
- Matériaux de qualité selon les normes en vigueur
- Accompagnement dans le choix et l’acquisition du terrain
- Construction conforme à la nouvelle RE 2020

Informations du terrain : Très belle vue dans un cadre bucolique.

Demandez une étude gratuite et personnalisée de votre projet de construction !

Prix avec assurance dommages-ouvrage comprise, VRD non compris, terrain viabilisé, adaptation non comprise, assainissement compris, frais de notaire non compris, taxes non comprises, frais divers non compris. Terrain sélectionné et vu pour vous sous réserve de disponibilité et au prix indiqué par notre partenaire foncier. Conditions et visuels non contractuels.

Détails

  • Modèle présenté : RIVERSIDE-4CH143
  • Surface maison : 143 m²
  • Pièces : 8
  • Chambres : 4
  • Salles de bain : 2
  • Garage : 22 m²
  • Commune : 63210 SAINT-PIERRE-ROCHE
  • Surface terrain : 1 094 m²
  • Lotissement : Non
  • Prix : 373 230 €

Plan

Localisation

Demander une étude gratuite personnalisée

* champ obligatoire