Projet de construction d'une maison 156 m² avec terrain à SAINT-VALLIER (71)

Budget maîtrisé, délais garantis, assurances incluses : cette offre clé en main couvre chaque étape, du permis de construire à la remise des clés.

Votre projet clé en main commence ici

Maison 156 m² — 3 chambres

SAINT-VALLIER (71230)
407 100 €
  • Pièces : 6
  • Chambres : 3
  • Surface maison : 156 m²
  • Surface terrain : 2 214 m²
  • Garage : 82 m²

À propos de cette offre

A SAINT-VALLIER sur un terrain de 2214 m², LES DEMEURES REGIONALES vous propose de réaliser cette maison neuve d'une surface de 156 m² habitables avec 3 chambres.

LES DEMEURES REGIONALES vous propose les prestations suivantes :
- Plan sur-mesure et personnalisé de 2 à 6 chambres
- Mode de chauffage au choix
- Grands choix d'équipements et de prestations
- Matériaux de qualité selon les normes en vigueur
- Accompagnement dans le choix et l’acquisition du terrain
- Construction conforme à la nouvelle RE 2020

Informations du terrain : - Quartier résidentiel et très recherché
- Peu de vis à vis
- Clôturé en partie par des haies

Demandez une étude gratuite et personnalisée de votre projet de construction !

Prix avec assurance dommages-ouvrage comprise, VRD compris, terrain non viabilisé, adaptation comprise, assainissement non compris, frais de notaire non compris, taxes non comprises, frais divers compris. Terrain sélectionné et vu pour vous sous réserve de disponibilité et au prix indiqué par notre partenaire foncier. Conditions et visuels non contractuels.

Détails

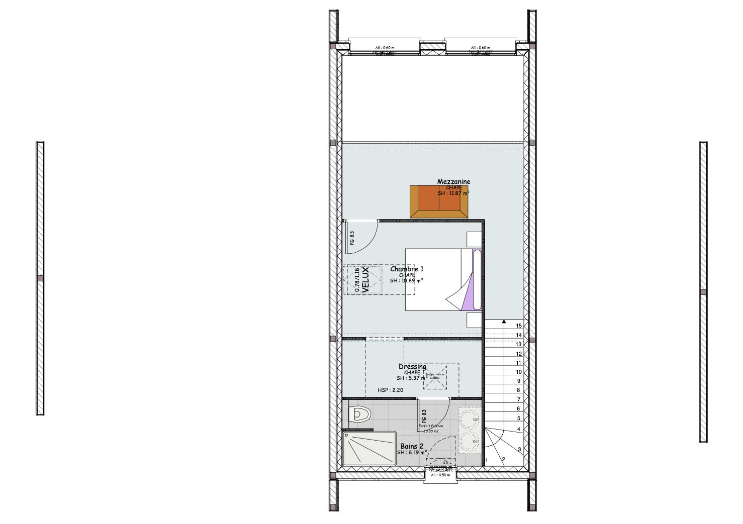
  • Modèle présenté : MONTANA-3CH156
  • Surface maison : 156 m²
  • Pièces : 6
  • Chambres : 3
  • Salles de bain : 2
  • Garage : 82 m²
  • Commune : 71230 SAINT-VALLIER
  • Surface terrain : 2 214 m²
  • Lotissement : Non
  • Prix : 407 100 €

Plan

Localisation

Demander une étude gratuite personnalisée

* champ obligatoire